Tabaqueira
Facelift, Albarraque, 2011
A proposta de intervenção que apresentamos procura responder ao programa de requalificação arquitetónica definido pela Tabaqueira E.I.T. SA tendo como princípio unificador a busca de soluções sustentáveis, não só na escolha de materiais como também na definição de sistemas que permitam otimizar os recursos disponíveis.
De forma a controlar e quantificar o carácter sustentável da intervenção é proposta a assessoria técnica com vista a uma eventual certificação Lider A que será integrada em todas as fases de projeto e assistência à obra. A partir dos conceitos já definidos no projeto, deverá ter-se como objetivo uma classificação A+, podendo assim vir a atingir um patamar de referência a nível institucional também nesta área.
1. Revestimento Exterior
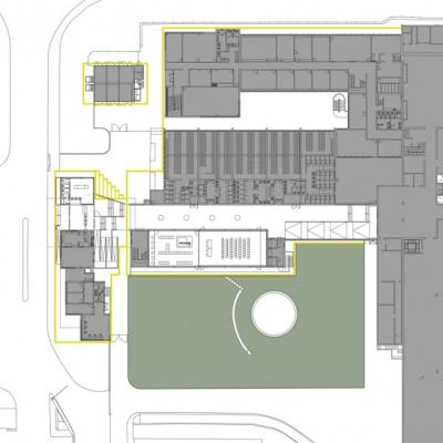
A atual entrada poente da fábrica da Tabaqueira é caraterizada por diferentes tipos de edifícios de épocas distintas, apresentando por esse motivo uma imagem pouco coerente entre si.
A intervenção a realizar na entrada poente da fábrica da Tabaqueira vai procurar criar em primeiro lugar uma nova imagem moderna e apelativa que permita estabelecer uma lógica de conjunto dos edifícios que caraterizam esta zona, através de uma nova “pele” que vai envolver as várias construções existentes.
Esta nova “pele” de aparência vegetal, vai ser constituída por um revestimento em chapas metálicas perfuradas, que permite, por um lado, garantir uma imagem exterior forte e por outro, através do seu desenho e perfurações, manter uma certa transparência, essencial em nossa opinião para garantir a qualidade espacial e funcional para quem trabalha e utiliza os espaços interiores destes edifícios.
No estudo e dimensionamento deste revestimento foi determinante a escolha de proporções que permitam, considerando as dimensões dos vãos existentes, manter em todos os casos zonas preenchidas através da chapa perfurada e zonas totalmente abertas em que é possível visualizar o exterior sem o filtro conferido pelo revestimento. A correta proporção entre estas duas realidades vai conferir, em nossa opinião, a qualidade espacial que se pretende para os espaços interiores em termos lumínicos e de ambiente, garantindo simultaneamente uma imagem exterior forte e apelativa. Este novo filtro vai permitir também melhorar de uma forma passiva o comportamento térmico dos edifícios existentes devido ao ensombramento do excesso de radiação solar no verão, funcionando no inverno como uma proteção acrescida para o vento e chuva.
Na sua conceção foi igualmente determinante a escolha e definição de um sistema que se possa adaptar às diferentes características construtivas e formais das construções existentes com grande flexibilidade. O sistema proposto, por se localizar afastado em relação às fachadas e por ter fixações pontuais, permite sem grande esforço uma grande adaptabilidade às várias situações existentes. Por outro lado permite manter a passagem das várias infraestruturas existentes criando simultaneamente um filtro que de certa forma camufla e uniformiza a unidade exterior dos vários edifícios.
De forma a valorizar o efeito cromático desta nova “pele” está prevista a pintura de todas as fachadas existentes com um tom neutro, provavelmente em cor cinza que irá permitir que as cores a escolher para o revestimento final sejam desta forma destacadas.
2. Portaria Poente
A partir do exterior será de imediato percetível a nova imagem que vai caracterizar o conjunto da intervenção. A entrada do complexo está claramente identificada não só pela interrupção da “pele” neste ponto, como também pela transparência que se vai acentuar nesta zona.
O atual átrio exterior coberto apresenta neste momento o inconveniente, em nossa opinião, de ser demasiado exposto à intempérie, não transmitindo também uma imagem corporativa adequada ao prestígio da Tabaqueira E.I.T. SA.
Para esta zona a proposta contempla três operações fundamentais:
a) O encerramento da atual zona de átrio exterior através de envidraçados, sendo o acesso realizado por portas de correr em vidro;
b) A criação de um grande átrio em conjunto com a atual sala de espera de visitantes, caracterizado por uma imagem moderna de transparência e conforto adequada à nova imagem da Tabaqueira;
c) A reformulação das escadas e rampas de acesso ao corredor central de distribuição, suavizando os desníveis existentes e criando uma separação natural de fluxos de entrada e de saída;
No novo átrio de entrada será conferida uma especial atenção ao controlo térmico e acústico do espaço através da sua climatização e criação de tetos absorsores acústicos. Na zona central de entrada é proposta a localização de um novo balcão de receção em posição frontal de forma a permitir um atendimento personalizado. A atual zona de controlo em guiché pode-se manter como complemento a este atendimento ou como espaço de expansão da atual sala de segurança.
No espaço da atual sala de espera que constituirá a ampliação do átrio de entrada vão-se concentrar os equipamentos de controlo de saídas e a localização de novas instalações sanitárias dispostas de forma a permitir a sua utilização separada e em simultâneo para quem está no interior ou ainda no exterior da área alfandegada;
De forma a garantir a acessibilidade as rampas de acesso à cota inferior serão reformuladas de acordo com a atual legislação.
3. Corredor central
Pretende-se alterar o ambiente vivido neste espaço melhorando o conforto acústico e introduzindo a total visibilidade para o Jardim do Lago, que também será profundamente remodelado e requalificado.
Será instalado um teto falso de lâminas verticais que irá permitir incorporar material absorsor acústico, bem como a iluminação ambiente deste espaço. Estão também previstas a abertura de lanternins para valorizar a iluminação natural, dispostos em ritmo que acompanha a modulação estrutural dos novos espaços no Edifício do Lago.
De forma a cumprir a legislação de segurança contra incêndios, não se irão agravar as atuais condições de segurança, tal como se desenvolve no projeto da especialidade.
Por este motivo a solução proposta permite proteger e abrigar ainda mais a zona de transição coberta entre a portaria e o corredor através da nova “pele” mantendo ainda assim a comunicação franca deste corredor com o exterior.
Com o objetivo de suavizar o perfil longitudinal do corredor, garantindo também a acessibilidade, é proposta a criação de uma nova rampa de transição entre a cota do corredor e a cota da portaria interior poente.
4. Edifício do Lago
A proposta de intervenção neste edifício procura resolver o programa funcional com uma única ideia forte que unifica os recursos disponíveis para a intervenção, potenciando, em nossa opinião, o resultado final. Dado o carácter nobre desta área foram selecionados materiais que exprimem essa qualidade como a madeira maciça de Jatoba, as caixilharias em aço e o vidro.
Assim as fachadas para o corredor e para o jardim do Lago serão totalmente envidraçadas de forma a tirar o máximo partido da interessante vista para o jardim e o seu inverso. Já no interior do edifício os dois espaços programáticos – museu e espaço de auditório/ reuniões/ receção serão unificados por um revestimento de madeira maciça que vai concretizar o pavimento, as restantes paredes e o teto num gesto dinâmico e continuo de forma a valorizar esta intervenção.
Todas as questões técnicas serão salvaguardadas de forma a permitir uma utilização destes dois espaços de forma flexível e funcional. Na zona de auditório/ reunião/ receção serão integradas cortinas com efeito blackout que permite, se necessário, o obscurecimento total do espaço. O tratamento acústico do espaço será assegurado através de um espaçamento no réguado de madeira no teto falso que permite criar “frinchas” com um dimensionamento controlado, de forma a criar as necessárias zonas de absorção acústica. Os envidraçados definidos garantem as exigências de compartimentação definidas no projeto de segurança contra-incêndios, permitindo também realizar o isolamento acústico em relação ao corredor e restantes espaços envolventes.
Junto ao espaço de auditório existe um compartimento que pode servir para arrumação das cadeiras e mesas propostas (cadeiras empilháveis e mesas desmontáveis), tendo sido sugerida uma segunda valência para este espaço que pode funcionar como espaço técnico de controlo de som/ imagem e também como cabines de tradução simultânea para apoio a eventos internacionais em que seja necessária esta funcionalidade. Deste modo o projeto prevê todas as infraestruturas necessárias para este fim em termos de construção civil, tubagens e alimentações, não estando ainda previstos (uma vez que não é pedida no programa esta valência) os equipamentos específicos de tradução simultânea.
Na área museológica foi contemplado um conjunto de mobiliário específico para exposições constituído por módulos de polipropileno que pode ser facilmente ajustado para diferentes tipos de exposição que se pretenda realizar ao longo do tempo. O mobiliário proposto corresponde a uma definição de layout da equipa projetista sendo os seus componentes desenvolvidos por uma empresa especializada nesta área. Estes vão integrar iluminação própria e eventual impressão de elementos gráficos de apoio à interpretação das peças que se pretende expor.
5. Instalações sanitárias
Na reformulação das instalações sanitárias propõe-se a criação de um compartimento que garanta a acessibilidade a pessoas de mobilidade reduzida, sendo também alterados os acessos aos restantes sanitários de forma a não tornar tão expostos estes espaços.
A intervenção contempla a remodelação total destes espaços sendo propostos novos materiais de revestimento e de compartimentação em que se privilegiou para além do seu aspeto estético a sua funcionalidade, durabilidade e facilidade de manutenção. Para o pavimento e paredes é proposto um revestimento de mosaico de grés porcelânico e para a compartimentação e bancadas a utilização de compactos fenólicos de alta resistência.
Todas as infraestruturas serão refeitas e será dado especial cuidado na ventilação do espaço e também das caixas de visita, uma vez que se detetou nas visitas que poderá existir um mau funcionamento das mesmas atualmente.
