Escola Secundária Domingos Sequeira
Modernização, Leiria, 2008-2010

Menção Honrosa,
Prémio Korrodi 2012

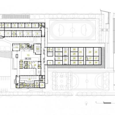
O projeto de  modernização da Escola Secundária Domingos Sequeira pode ser resumido nas seguintes opções:

1. Construção de um novo edifício que vai funcionar como nova entrada na escola e que pela sua localização e configuração funcione como rótula e interligação dos edifícios existentes. Este novo edifício vai integrar os espaços de utilização diária que permitam uma maior integração e interação entre os diferentes utilizadores da escola, criando uma nova centralidade. Para além dos espaços administrativos e de direção vai integrar a nova biblioteca e centro de recursos da escola em conjunto com espaços com vocação mais lúdica como sejam: a loja de conveniência, a reprografia, a associação de estudantes e a cafetaria que vai funcionar em complemento com o atual refeitório;

O Átrio central da escola é um espaço amplo com iluminação natural que serve de ponto de encontro para a comunidade escolar. Todo o átrio é decorado por pinturas feitas pelos próprios alunos da escola.

2. Remodelação dos edifícios