Casa Raposo
Remodelação e ampliação, Caxias, 2006-2009
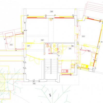
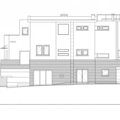
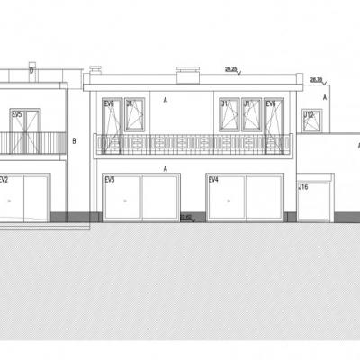
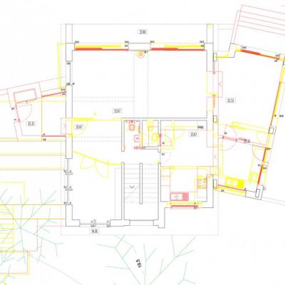
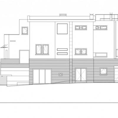
A intervenção é caracterizada pela remodelação e ampliação da construção existente através de um novo corpo adossado à fachada poente.
Pelas suas proporções esta nova construção respeita a volumetria e proporções da moradia existente, e está implantada de forma a permitir manter a sua leitura de nova intervenção mas que garante uma relação de equilíbrio com o existente.
Ao nível do piso térreo está prevista uma nova sala de jantar e a ampliação da cozinha existente. No primeiro piso está previsto um novo quarto com zona de vestiário e casa de banho.
